Transformatie winkel naar appartementen Rijksweg Geleen (I)
 
 
 
 Transformatie winkel naar appartementen Rijksweg Geleen (I)
 
 
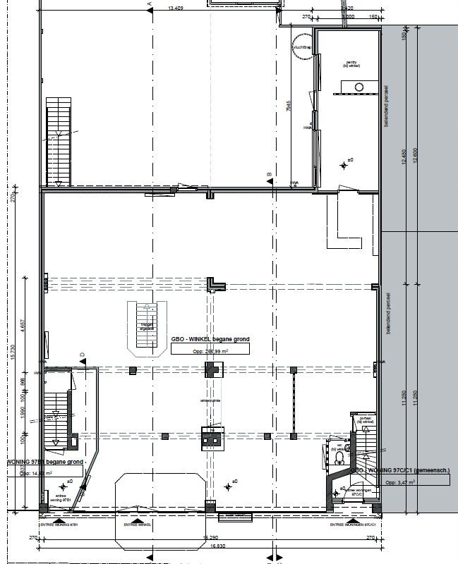
De begane grond van dit pand aan de Rijksweg Zuid in Geleen had tot voor kort de bestemming winkel. De gemeente heeft medewerking verleend aan de wens hier een woonbestemming van te maken. Op de de bovengelegen verdiepingen waren reeds appartementen aanwezig. Deze zijn gerenoveerd. 
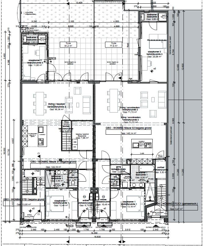
Op de begane grond zijn twee nieuwe, ruime stads-appartementen gerealiseerd.  Hiertoe is de voorgevel aangepast en is de achtergevel, die volledig gesloten was,  opengewerkt. Aan de achterzijde is aan een zijde een vleugel aangebouwd om te voorzien in een extra slaapkamer. Zowel in interieur als exterieur zijn frisse materialen gebruikt om de appartementen een eigentijdse uitstraling te geven.

















